

SL型十字滑块联轴器 特点及应用场合:不能缓冲、减振、径向尺寸小、转动惯量小.适月于转矩较小,载荷变化不大,无剧烈冲击的两轴联接

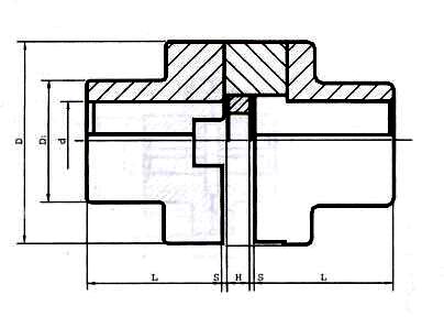
SL型十字滑块联轴器的参数及主要尺寸:(Q/ZY 03-2001) mm

十字滑块连轴器又名金属滑块连轴器,其滑块呈圆环形,用钢或耐磨合金制成,适用于转速较低,传递转矩较大的传动。
十字滑块连轴器由两个在端面上开有凹槽的半连轴器和一个两面带有凸牙的中间盘组成。因凸牙可在凹槽中滑动,故可补偿安装及运转时两轴间的相对位移。
十字滑块连轴器零件的材料可用45钢,工作表面需要进行热处理,以提高其硬度;要求较低时也可用Q275钢,不进行热处理。为了减少摩擦及磨损,使用时应从中间盘的油孔中注油进行润滑。
因为半连轴器与中间盘组成移动副,不能发生相对转动,故主动轴与从动轴的角速度应相等。但在两轴间有相对位移的情况下工作时,中间盘就会产生很大的离心力,从而增大动载荷及磨损。因此选用时应注意其工作转速不得大于规定值。
十字滑块连轴器一般用于转速n<250r/min,轴的刚度较大,且无剧烈冲击处。

公司生产地址:江苏省镇江市高新技术开发园区68号
销售中心地址:江苏省镇江丁卯开发区智慧大道668号705室
手机:孙女士 18952800101
QQ:1991897647
电话:0511-85788529
传真:0511-85019680(自动接收)
企业邮箱:sales@lzqgs.cn
Copyright © 丹阳市开发区福克联轴器厂 版权所有 苏ICP备19059311号-2
苏公网安备32111202000940号 技术支持:江苏易润
专业生产:弹性联轴器 | 弹性柱销联轴器 | 弹性星型联轴器 | 梅花形弹性联轴器 | 中间轴柱销齿式联轴器